Nabízíme bydlení v bytovém domě v městě Plasy. Plasy se nacházejí 20 km severně od Plzně. Město Plasy jsou dostupné autobusovou dopravou, je zde velmi dobrá občanská vybavenost, je zde škola , školka, zdravotní zařízení, obchody.
Území pro výstavbu bytových domů , je tvořeno mírně svažitým pozemkem k jihozápadu, který se nachází na okraji města Plasy, pod stávající zástavbou školy, proto Lokality „Pod školou“.
Celková plánovaná výstavba se sestává ze čtyř bytových domů s jedním podzemním podlaží a čtyřmi nadzemními podlažími. Výstavba bude prováděna postupně, přičemž každý dům je tvořen jako samostatný celek.
Architektonickým záměrem je klidné bydlení v moderním stylu. Domy jsou navrženy tak, aby citlivě doplnily stávající okolní zástavbu.
Plánované jsou 4 samostatné bytové domy. Jeden bytový dům se skládá z 12 bytových jednotek a 5 garáží.
Dispozice jednotlivých bytů jsou v patrech nad sebou stejné, každý byt má svůj balkón přístupný z bytu.
V podlaží jsou navrženy vždy tři byty o různých velikostech – 1+kk, 2+kk a 3+kk podlahovou plochou od 43 m2 do 83 m2.
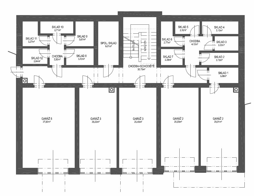
V 1. PP jsou navrženy sklepy k jednotlivým bytovým jednotkám, 5 garáží a místnosti technického zázemí. Každá s garáží je samostatně přístupná vjezdem s garážovými vraty.
Dům bude zděný provedený z klasických materiálů, střechy jsou navrženy ploché, okna a vstupní dveře jsou plastová, do jednotlivých podlaží je umožněn přístup po schodišti, bytové jednotky budou vytápěny plynovými kotli se zásobníkem.
V lokalitě je navržena obslužná komunikace, místo pro kontejnery a parková úprava.
Hoda – nemovitosti a stavby s.r.o.
Se sídlem Koterovská 63, Plzeň
IČO : 49 19 55 90
Obchodní rejstřík vedený Krajským soudem v Plzni , oddíl C vložka 4257
Zastoupená jednatelem společnosti Ing. Ivanem Hodou
Hoda – reality s.r.o.
Se sídlem Koterovská 63, Plzeň
IČO : 25200640
Obchodní rejstřík vedený Krajským soudem v Plzni , oddíl C vložka 7744
Zastoupená jednatelkou společnosti Simonou Kuhajdovou.
kuhajdova@hoda-reality.cz.
Tel.: +420 602 137 670