Nabízíme bydlení v bytovém domě ve městě Plasy. Plasy se nacházejí 20 km severně od Plzně a jsou dostupné autobusovou dopravou. Je zde velmi dobrá občanská vybavenost, škola, školka, zdravotní zařízení, obchody.
Území pro výstavbu bytových domů je tvořeno mírně svažitým pozemkem k jihozápadu, který se nachází na okraji města Plasy, pod stávající zástavbou školy, proto Lokality „Pod školou“.
Celková plánovaná výstavba se sestává ze čtyř bytových domů, každý s jedním podzemním podlaží a čtyřmi nadzemními podlažími. Výstavba bude prováděna postupně, přičemž každý dům je tvořen jako samostatný celek. V roce 2014 byl zkolaudovaný nejjižnější bytový dům.
Architektonickým záměrem je klidné bydlení v moderním stylu. Domy jsou navrženy tak, aby citlivě doplnily stávající okolní zástavbu.
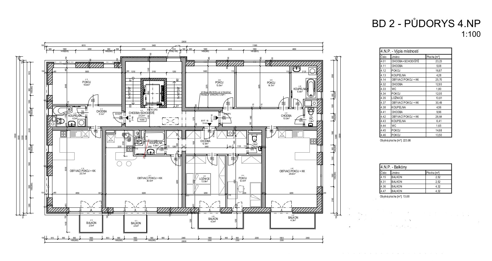
Plánované jsou 4 samostatné bytové domy. Jeden bytový dům se skládá z 12-16 bytových jednotek a 5-6 garáží.
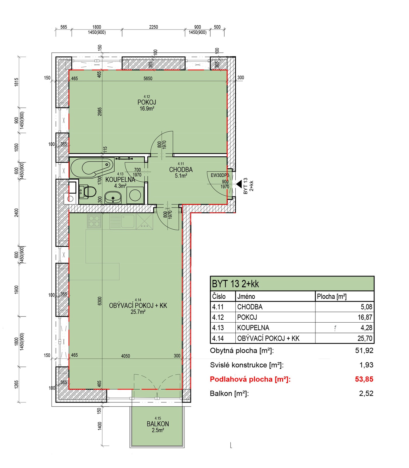
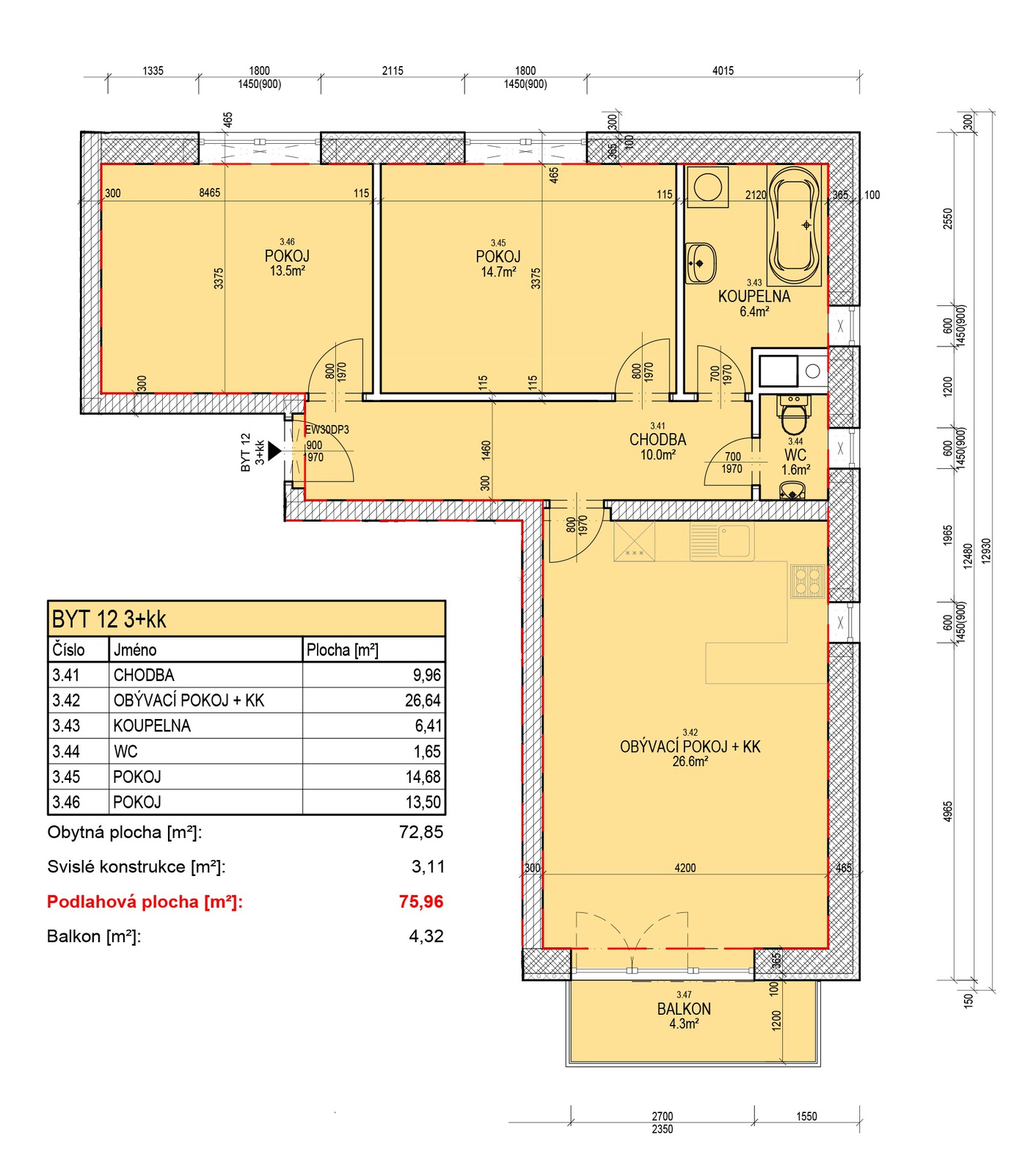
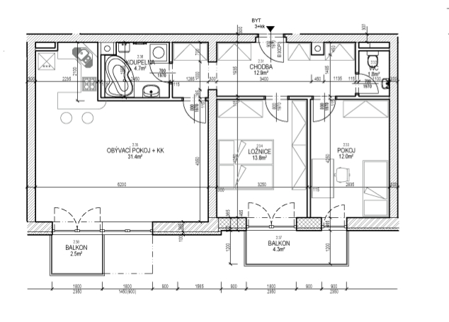
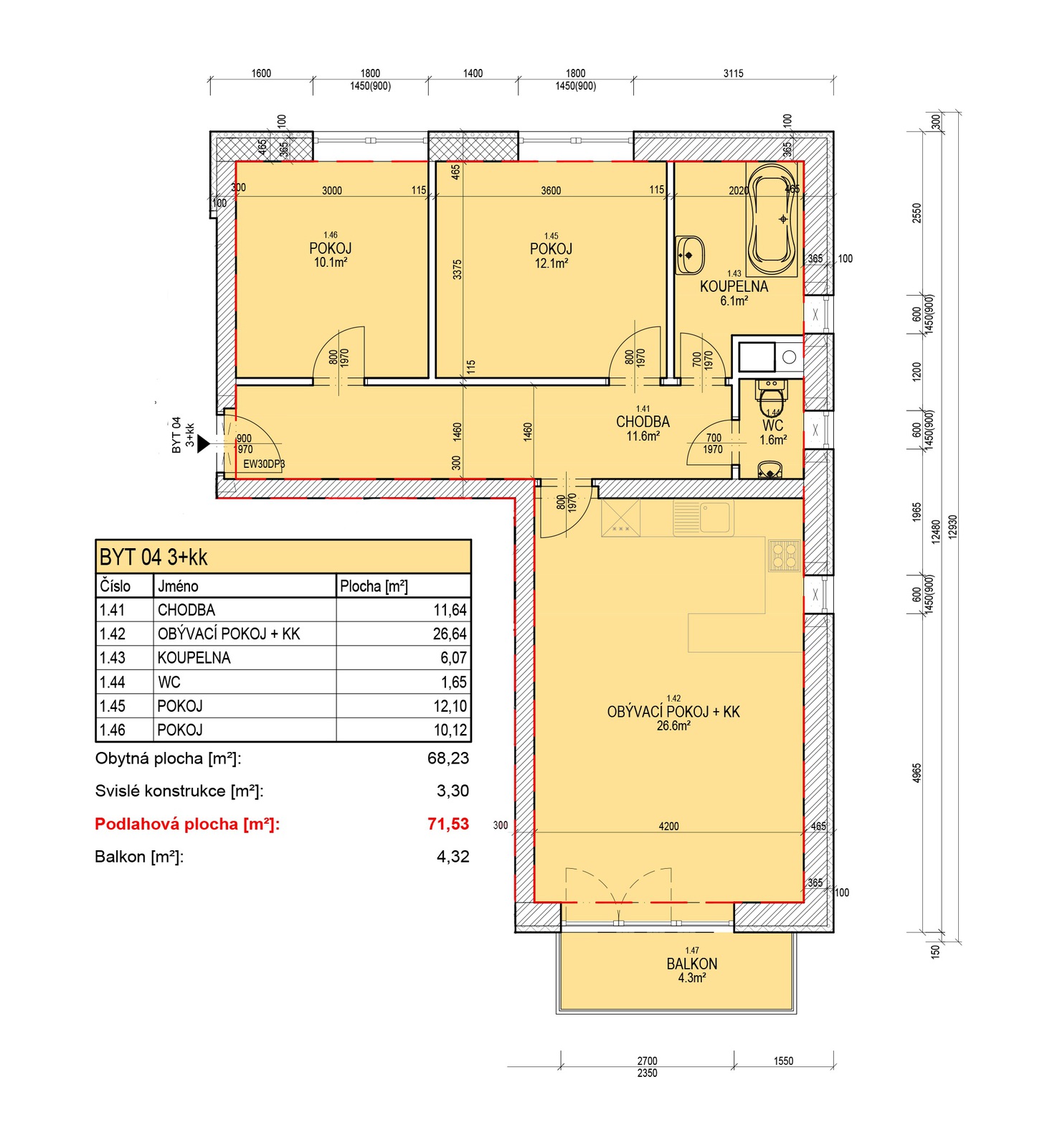
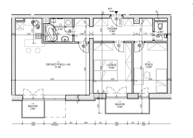
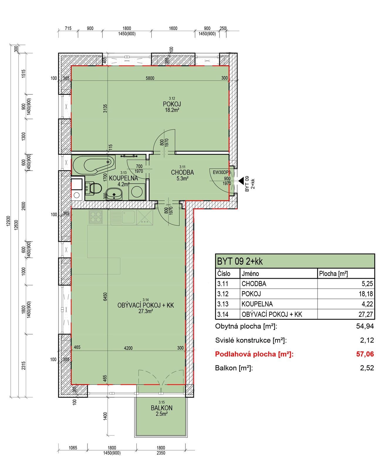
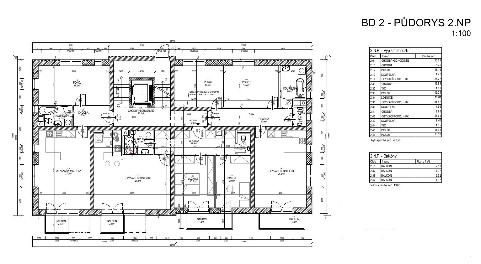
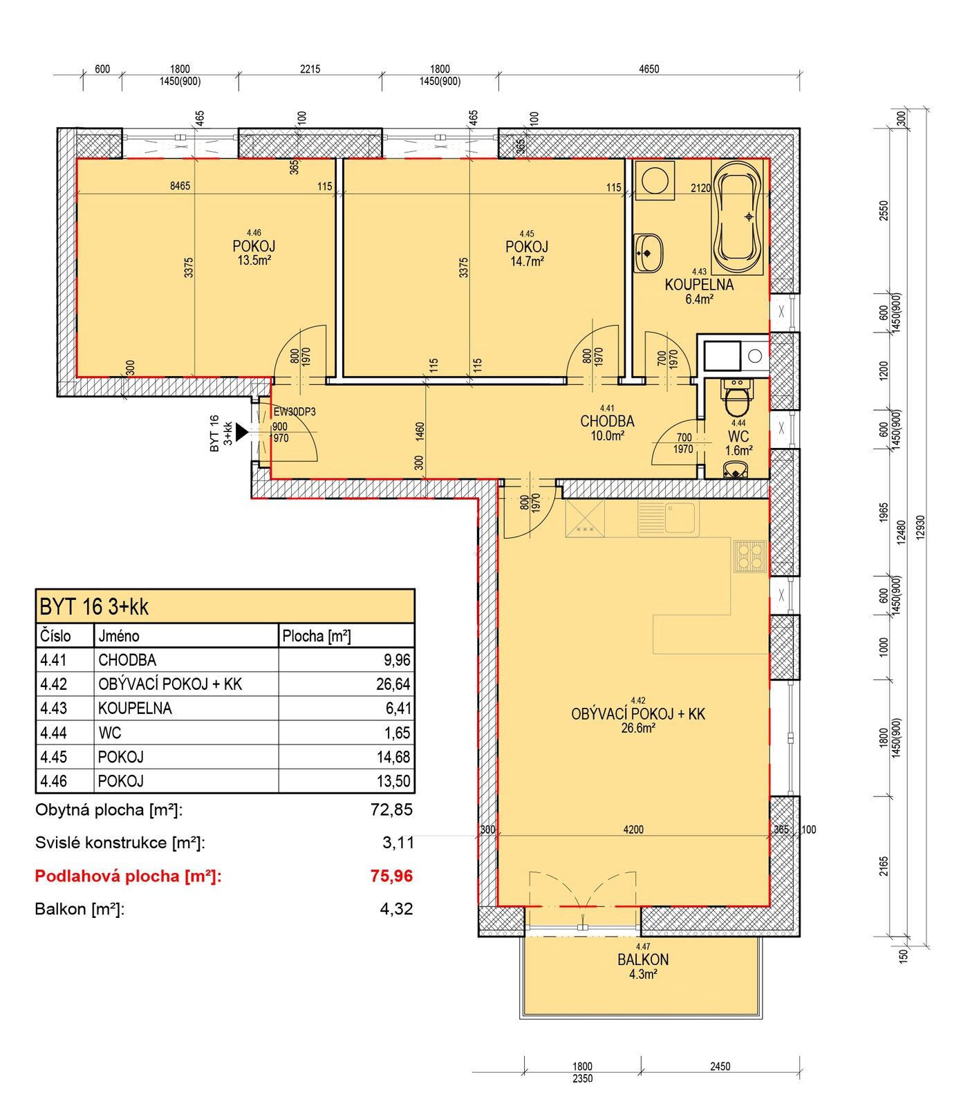
Dispozice jednotlivých bytů jsou v patrech nad sebou stejné, každý byt má svůj balkón přístupný z bytu. Domy disponují výtahem.
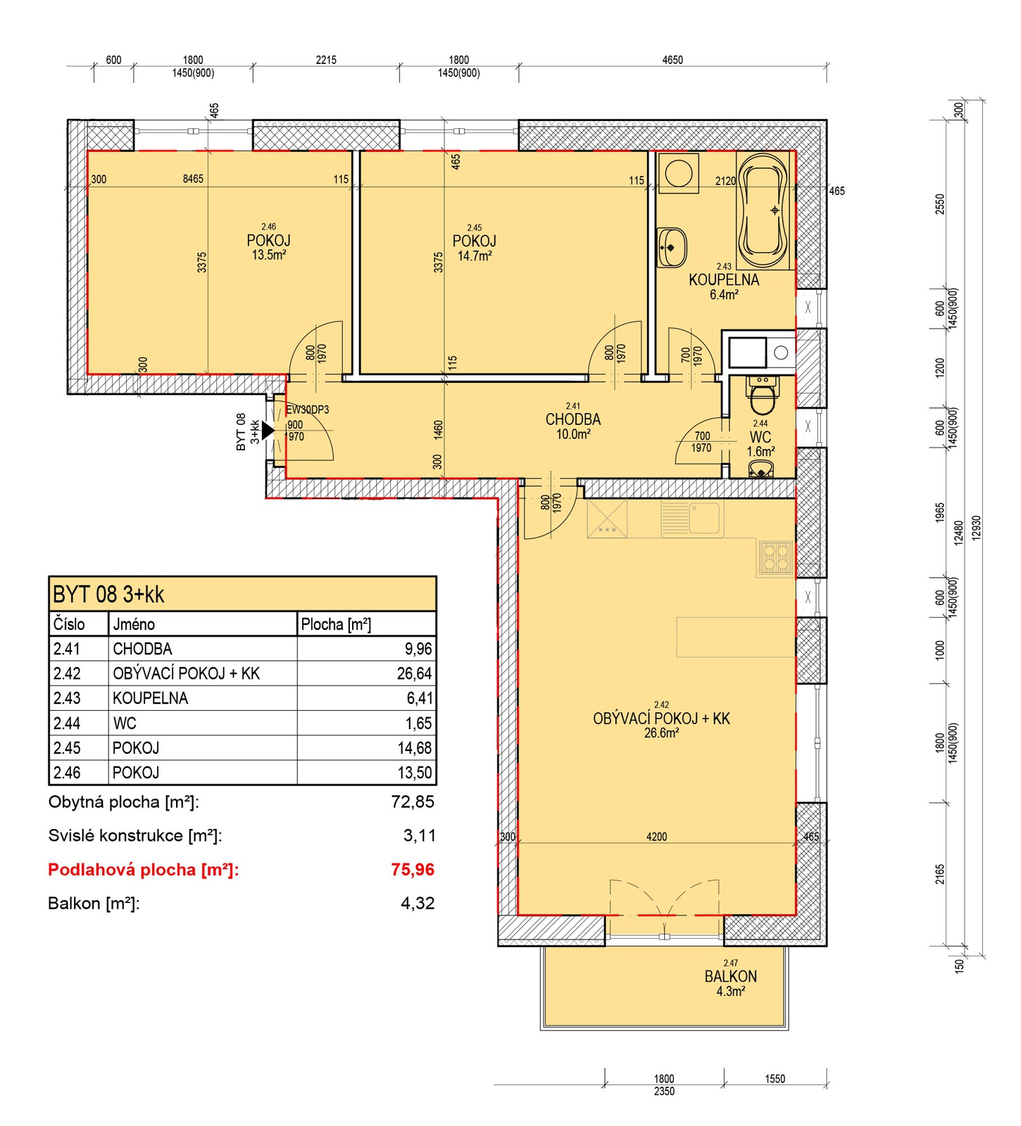
V podlaží jsou navrženy vždy čtyři byty o různých velikostech – 2x 1+kk, 2+kk a 3+kk podlahovou plochou od 42 m2 do 75 m2.
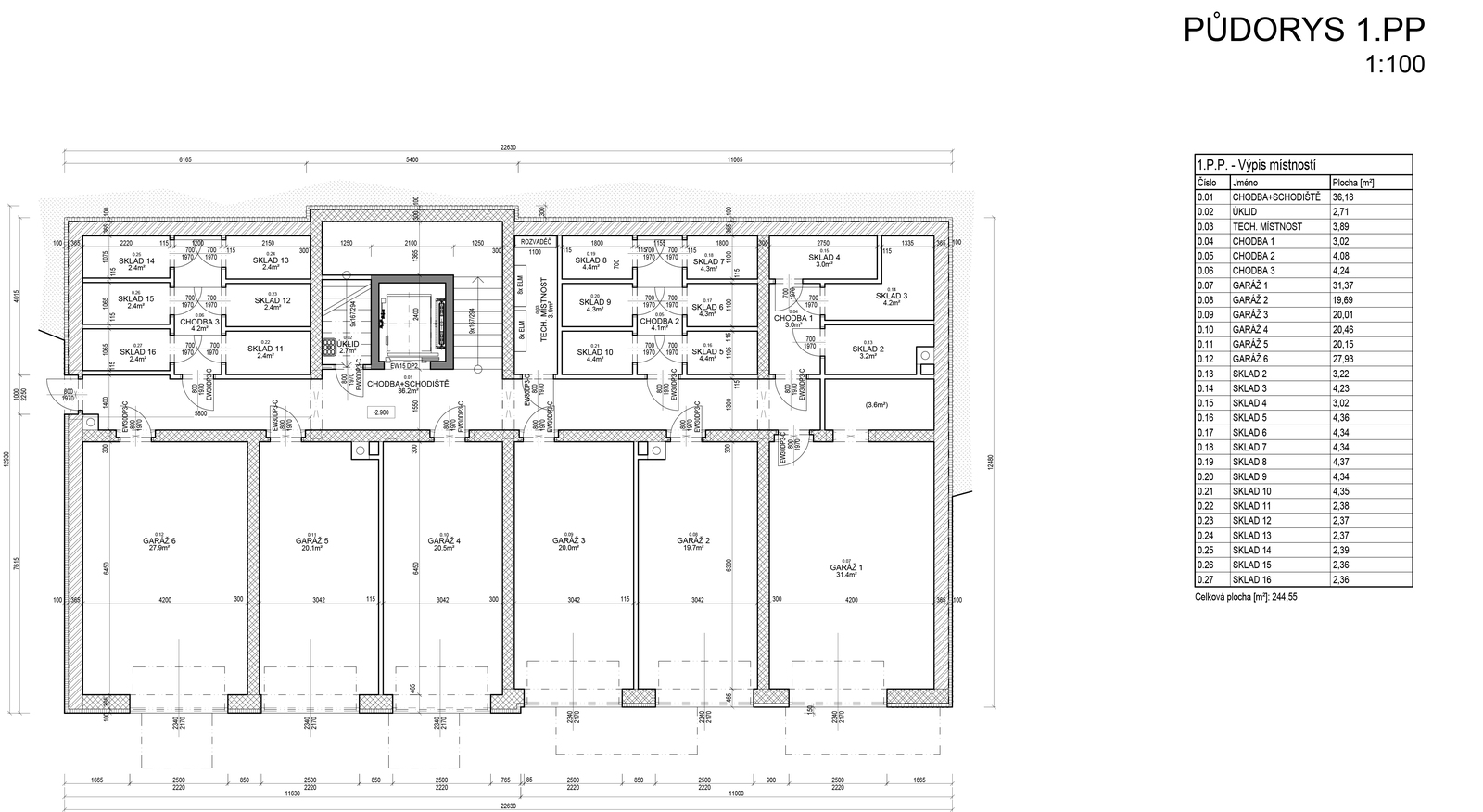
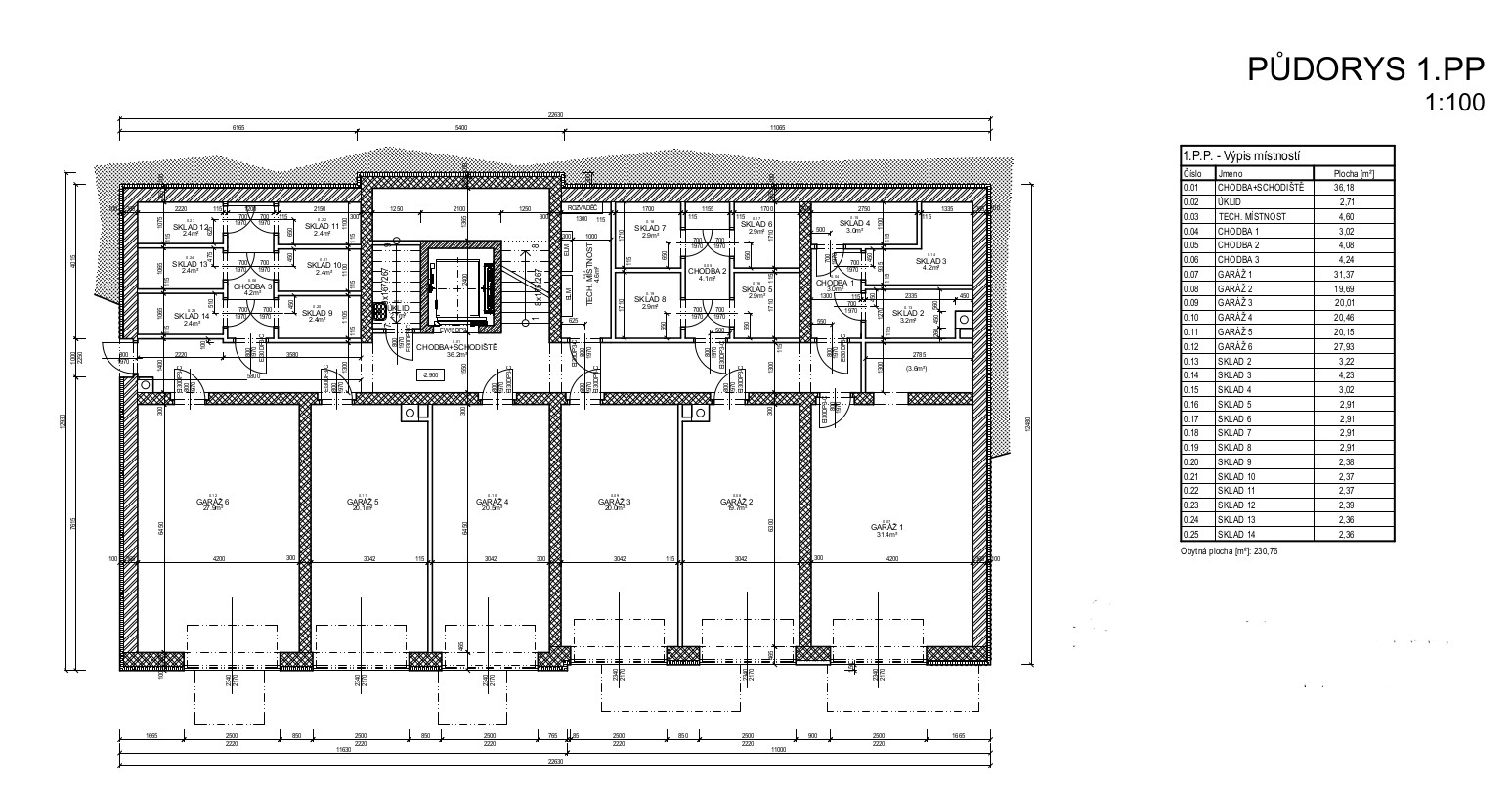
V 1. PP jsou navrženy sklepy k jednotlivým bytovým jednotkám, 6 garáží a místnosti technického zázemí. Každá s garáží je samostatně přístupná vjezdem s garážovými vraty.
Dům bude zděný provedený z klasických materiálů, střechy jsou navrženy ploché, okna a vstupní dveře jsou plastová. Do jednotlivých podlaží je umožněn přístup výtahem a po schodišti. Bytové jednotky budou vytápěny plynovými kotli s průtokovým ohřevem vody.
V lokalitě je navržena obslužná komunikace, místo pro kontejnery a parková úprava.
Blustery s.r.o.
Se sídlem Koterovská 63, Plzeň
IČO : 02575027
Obchodní rejstřík vedený Krajským soudem v Plzni , oddíl C vložka 29410
Zastoupená jednatelem společnosti Ing. Ivanem Hodou
Hoda – reality s.r.o.
Se sídlem Koterovská 63, Plzeň
IČO : 25200640
Obchodní rejstřík vedený Krajským soudem v Plzni , oddíl C vložka 7744
Zastoupená jednatelkou společnosti Simonou Kuhajdovou.
kuhajdova@hoda-reality.cz.
Tel.: +420 602 137 670
| Standardy Bytových jednotek | Standardy obkladů dlažeb a sanitárního zařízení |